| Sign In | Join Free | My chinalane.org |
|
Brand Name : SPDAR , Hongfa
Model Number : LSW
Certification : ISO9001:2008, AWS and BS EN ISO welding certificate by Singapore Setsco
Place of Origin : Guangdong of China
MOQ : 20 Ton or 1000 Square meter
Price : Negotiable
Payment Terms : T/T or L/C at sight
Supply Ability : 10000 metric ton/month
Delivery Time : 15~45days
Packaging Details : All steel members are put into one steel holder
Material : Q355B
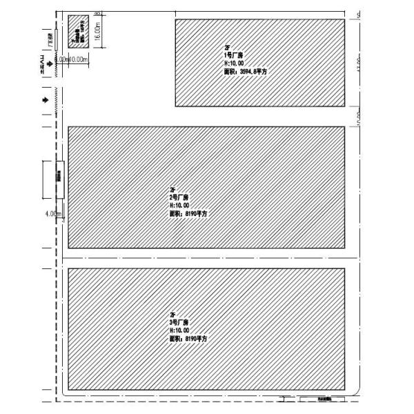
Size : 60*136M
Design : PKPM
Type : I Beam
Bracing : D12 rod
Treatment : Painting
Connection : By Bolt
Claddy : Single Panel
Big Steel Structure Workshop With Full Mezzanine Floor In Cambodia
| Product Name | Customized prefabricated Logistic Steel Structure Warehouse |
| Place of Origin | Dongguan, Guangdong(China) |
| Wind Resistance | Grade 12 |
| Material | Q235B / Q355B |
| Minimum Order | 100 Square Meters |
| Package | Iron frame chassis, use container |
Fire-Flaming Cutting

Auto-matic Welding

Using Steel holder to put all steel parts then push into the container

|
|
60*136M Steel Structure Workshop Images |